Project Vitals
- Timeframe: Completion date, August 2027
- Budget: $83 million
- Funding Source: The project is funded with $83 million in state appropriations approved in the final 2022-2023 California State Budget
- Project Manager: Bynum Inc.
- Architect: AC Martin
- Collaborative Design-Build Contractor: Swinerton

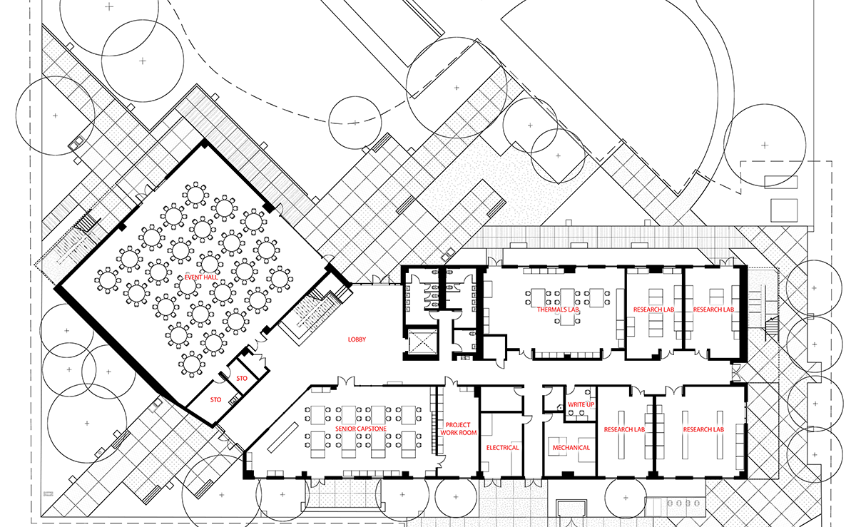
Project Details
- Three stories
- 55,280 gross square feet (GSF)
- 8,350 square feet of research space for physics and engineering faculty, students and the California Energy Research Center (CERC)
- 10,390 square feet of teaching labs
- 4,600-square-foot multi-purpose event hall
- New location for Extended Education and Global Outreach (EEGO) administration
- 20 new offices for physics and engineering faculty
- Natural Sciences, Mathematics, and Engineering (NSME) Grants and Outreach administration offices
- California Energy Research Center offices
- 1,500 square feet of student collaboration space
News
- Energy Innovation Building receives key approval
- CSUB celebrates site for future 'energy capital of California'
- State budget supports CSUB's Energy Innovation Center
Contact Us

Kristine De YoungAssociate Vice President Capital and Facilities Management Services
Phone: (661) 654-2211






